El Ayuntamiento de Trofa, situado en el norte de Portugal, concretamente en el distrito de Oporto, se ha afirmado como una de las realizaciones más significativas de la arquitectura pública portuguesa reciente. Más allá de su función administrativa, el edificio plantea una reflexión sobre la reutilización del patrimonio industrial y su potencial para convertirse en un referente cívico, democrático y plenamente contemporáneo.
El proyecto, firmado por el estudio portugués NOARQ y dirigido por el arquitecto José Carlos Nunes de Oliveira, fue concluido en 2023 y se implanta sobre un solar de aproximadamente 6.200 m². La intervención se basa en la transformación y ampliación de la antigua Indústria Alimentar Trofense, incorporando la estructura preexistente al corazón del nuevo complejo municipal y preservando la memoria productiva del lugar como parte esencial de su identidad arquitectónica.

Durante más de veinticinco años, Trofa fue el único municipio de Portugal sin una sede administrativa permanente, con sus servicios dispersos por distintos puntos de la ciudad. La construcción del nuevo ayuntamiento no solo vino a resolver esta carencia histórica, sino que consolidó un espacio de representación institucional y encuentro ciudadano, concebido por su arquitecto como una auténtica “Casa de Todos”.
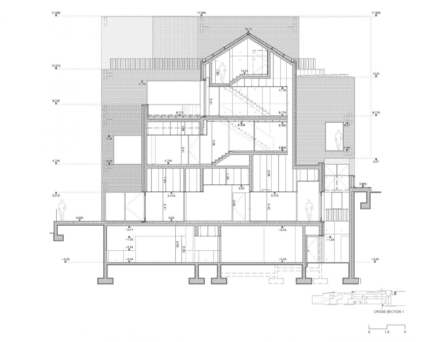
Desde el punto de vista arquitectónico, el edificio se caracteriza por una composición sobria y rotunda, articulada a través de cinco volúmenes estrechos y yuxtapuestos, revestidos en ladrillo oscuro, cuya presencia dialoga directamente con el pasado industrial del entorno. La intervención conserva y reinterpreta elementos del edificio original, estableciendo un equilibrio preciso entre preservación y renovación. De este modo, el antiguo complejo fabril no solo se mantiene vivo, sino que adquiere un nuevo significado dentro de la vida pública contemporánea.
La fachada de ladrillo contrasta con un interior dominado por superficies de hormigón liso, donde se articulan espacios de diversas alturas, corredores longitudinales, terrazas y nuevos volúmenes que dialogan constantemente con las estructuras existentes. La geometría alargada del edificio refuerza la claridad de los recorridos y facilita la conexión entre las distintas funciones que alberga.
En el interior, la organización espacial se apoya en la luz natural, las grandes alturas y una lectura clara de los espacios, pensados tanto para los servicios administrativos como para las áreas de atención al público. La arquitectura refuerza así valores esenciales para un edificio democrático: transparencia, accesibilidad y proximidad entre la institución y la ciudadanía.

Cada decisión —desde la elección de los materiales hasta las transiciones espaciales— revela una atención minuciosa y una voluntad de coherencia global, sin elementos superfluos ni gestos innecesarios. Como señaló Nunes de Oliveira, “el edificio es una síntesis de materia, forma y diseño: aparenta sencillez, pero está cuidadosamente concebido y ejecutado, manteniendo una coherencia que se extiende desde su presencia urbana hasta los espacios interiores y los más pequeños detalles constructivos”.
El Ayuntamiento de Trofa fue distinguido como Edificio del Año 2025, confirmando su relevancia arquitectónica y simbólica. El proyecto se erige así como un referente de cómo la reutilización del patrimonio industrial puede generar nuevos hitos urbanos, capaces de conectar pasado y presente a través de una arquitectura contemporánea comprometida con la identidad local y la vida colectiva.